Sunsafe is a sunscreen dispenser and refill pouch system designed for surf clubs that aims to reduce plastic packaging waste. This work received a Certificate of Recognition in the 2022 Worldstar Global Student Packaging Awards.

Concept development

Design solution features

General Assembly

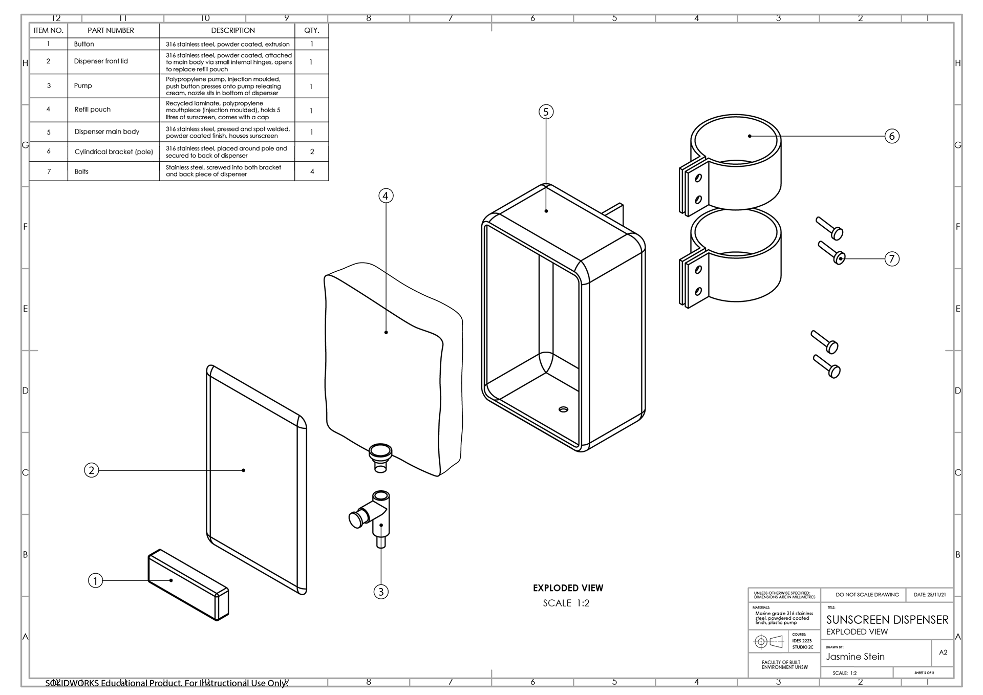
Exploded View

You may also like

Back to Top